INGEGNERIA - ARCHITETTURA - URBANISTICA TECNOLOGIE PER LA PREFABBRICAZIONE CIVILE ED INDUSTRIALE
INGEGNERIA - ARCHITETTURA - URBANISTICATECNOLOGIE PER LA PREFABBRICAZIONE CIVILE ED INDUSTRIALE

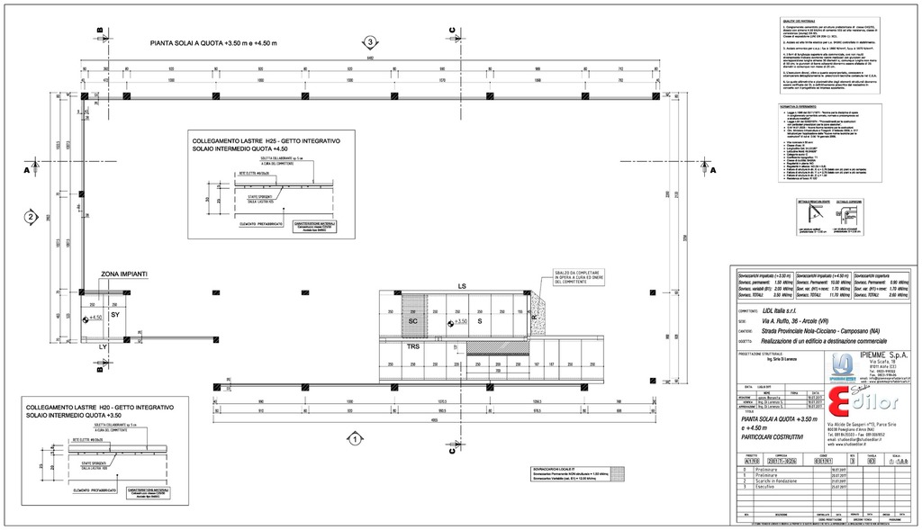
Comune di Camposano (NA)

Progettazione esecutiva delle strutture prefabbricate in c.a.o. e c.a.p. per la realizzazione di un edificio commerciale monopiano di 2050 mq sito nel Comune di Camposano (NA). 

 

Importo Lavori (ID. Opere S.06): €257.000,00

Importo Lavori (ID. Opere E.04): €58.000,00

Industria di prefabbricati: IPIEMME S.p.A.

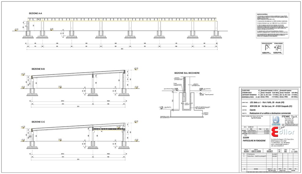
Comune di Caserta

Progettazione costruttiva delle strutture prefabbricate in c.a.o. e c.a.p. per la realizzazione di un edificio commerciale monopiano di 2020 mq sito nel Comune di Caserta. 

 

Importo Lavori (ID. Opere S.06): €227.000,00

Importo Lavori (ID. Opere E.04): €70.000,00

Industria di prefabbricati: IPIEMME S.p.A.

Comune di Pagani (SA)

Progettazione esecutiva delle strutture prefabbricate in c.a.o. e c.a.p. per la realizzazione di un edificio commerciale monopiano di 2160 mq sito nel Comune di Pagani (SA). 

 

Importo Lavori (ID. Opere S.06): €286.000,00

Importo Lavori (ID. Opere E.04): €60.000,00

Industria di prefabbricati: IPIEMME S.p.A.

Avete domande o richieste?

Inviateci una email o compilate il nostro modulo online.

Novità

Consultate il nostro nuovo sito web e troverete tutte le novità sui nostri servizi e progetti.

Stampa | Mappa del sito
Studio Edilor - www.studioedilor.it - Tutti i Diritti Riservati