INGEGNERIA - ARCHITETTURA - URBANISTICA TECNOLOGIE PER LA PREFABBRICAZIONE CIVILE ED INDUSTRIALE
INGEGNERIA - ARCHITETTURA - URBANISTICATECNOLOGIE PER LA PREFABBRICAZIONE CIVILE ED INDUSTRIALE

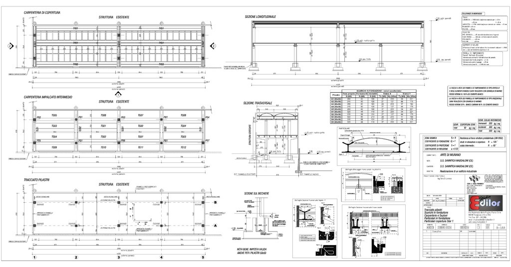
Arte di Murano

Progettazione esecutiva delle strutture prefabbricate per la realizzazione di un edificio industriale pluripiano di 500 mq sito nel Comune di Maddaloni (CE).

 

Importo Lavori: €100.000,00

Classi e Categorie: Ig

Industria di prefabbricati: CACEM s.r.l.

Avete domande o richieste?

Inviateci una email o compilate il nostro modulo online.

Novità

Consultate il nostro nuovo sito web e troverete tutte le novità sui nostri servizi e progetti.

Stampa | Mappa del sito
Studio Edilor - www.studioedilor.it - Tutti i Diritti Riservati