INGEGNERIA - ARCHITETTURA - URBANISTICA TECNOLOGIE PER LA PREFABBRICAZIONE CIVILE ED INDUSTRIALE
INGEGNERIA - ARCHITETTURA - URBANISTICATECNOLOGIE PER LA PREFABBRICAZIONE CIVILE ED INDUSTRIALE

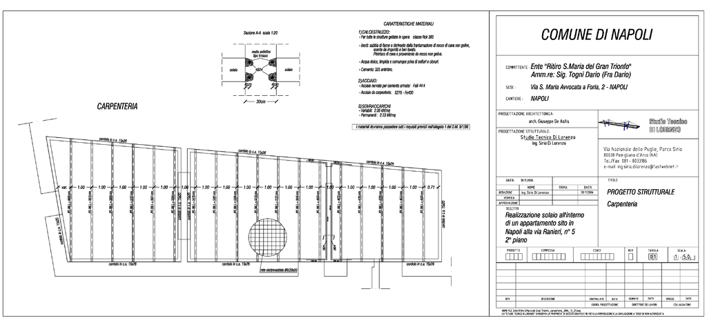
Ente “Ritiro S. Maria del Gran Trionfo”

Progettazione esecutiva delle strutture per la realizzazione di un solaio misto acciaio – calcestruzzo all'interno di un appartamento sito in Napoli alla via Ranieri n°5, 2° piano – 2006 – cat. Ig.

Avete domande o richieste?

Inviateci una email o compilate il nostro modulo online.

Novità

Consultate il nostro nuovo sito web e troverete tutte le novità sui nostri servizi e progetti.

Stampa | Mappa del sito
Studio Edilor - www.studioedilor.it - Tutti i Diritti Riservati